Teplowoda
Схемы
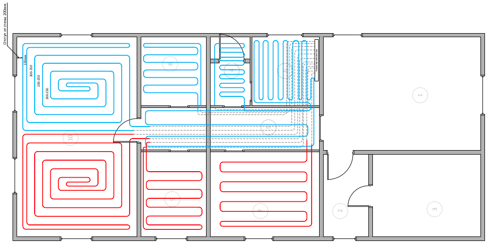
Вот образец схемы, которую мы разработаем под вашу индивидуальную задачу.
Заказать сейчас
Заказать Схемы
Вариант установки
На стену
На DIN рейку